27坪的日系簡約住宅
B1
原空間動線不佳,且沒有用餐空間。我們調整浴室方向,讓動線順暢、創造用餐空間。因應屋主烹飪需求,改用L型廚房增添廚具收納,料理更加方便。



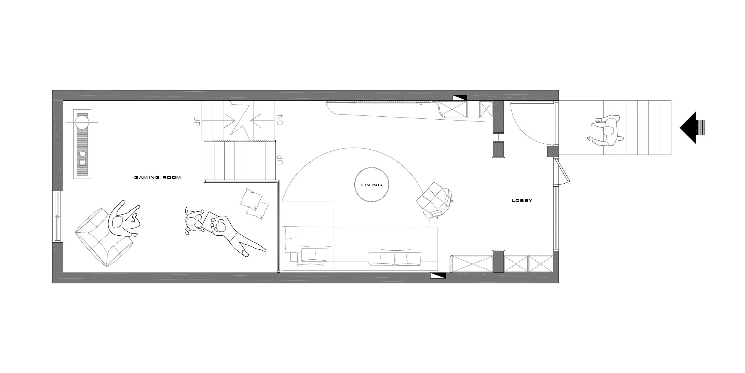
1 F
玄關地坪以水泥粉光和鍍鈦收邊與客廳灰色磁磚區隔,進入公共空間規劃一道ㄇ字型黑框門拱,內含燈光,沉穩的視覺感受,搭配長虹玻璃巧妙模糊場界線,使空間具有穿透感也保有隱私。


黑白灰色系交織木質調散發溫潤質感,電視牆以大理石紋路的薄板圍塑,弧形收納櫃體與鐵件展示層板勾勒線條輪廓。









1F夾層
挑高四米二的客廳設計夾層,是孩子們的遊樂場,屋主能隨時透過玻璃隔屏,查看孩子的情況,天花板兩支低樑,以圓弧與燈帶修飾,營造出家的意象。




2F
小孩房床頭選用淺綠跳色呈現清新活潑感。



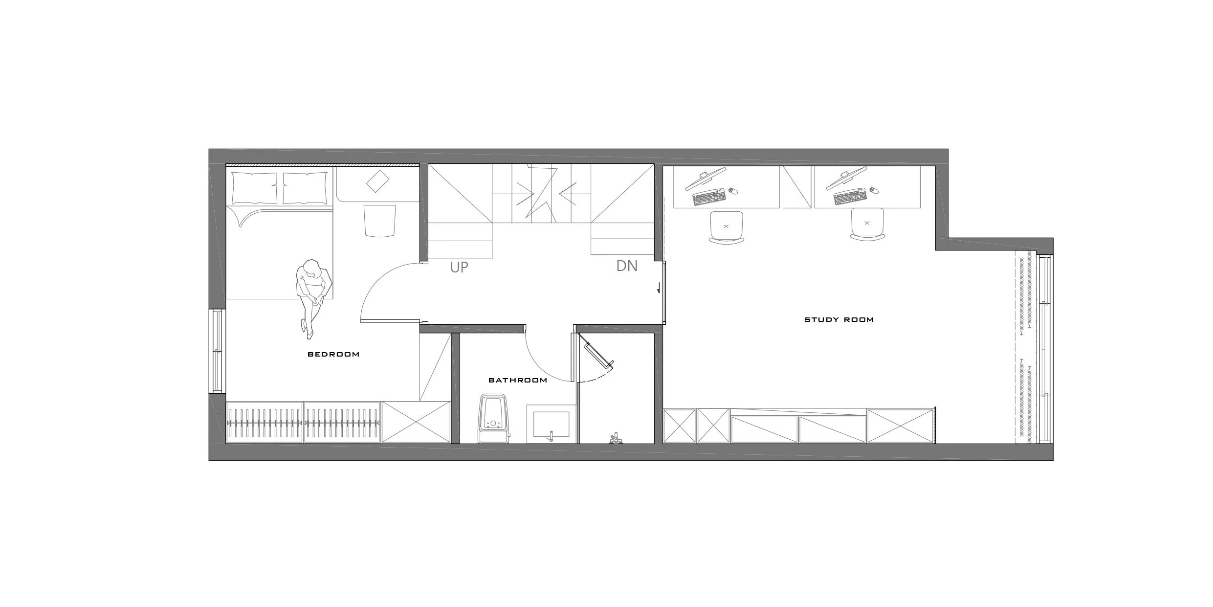
2F
書房以長虹玻璃門片引光入走道,大面積收納展示櫃,美感與機能兼備,打造一個功能性強且舒適的居家辦公區。



3F
主臥延續公領域簡約溫潤感,弧形的天花造型與衣櫃呼應,長廊式衣櫃提升收納量,以灰鏡做踢腳板延伸視覺。






浴室移位空間放大,雙洗手台媲美飯店級規格,使生活質感提升。
