與自然光共舞
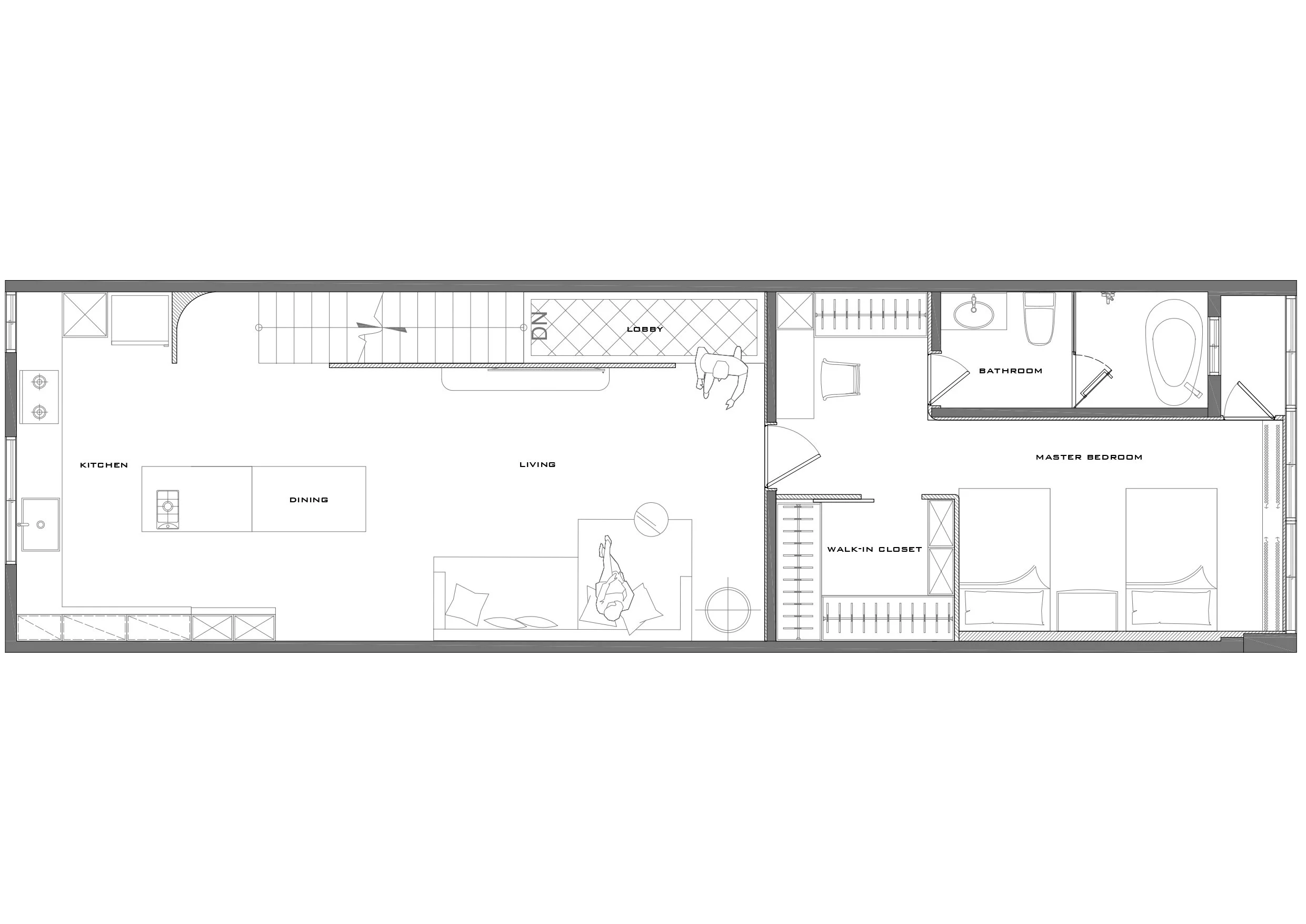
選用灰鏡與收納置鞋櫃結合,增加空間上的視覺寬敞感。
考慮到風水穿堂煞的問題,所以牆上設計能透光的玻璃磚搭配若隱若現的長虹玻璃推拉門巧妙將落地窗的光線引進,並增強了整體的明亮感。
不同於公領域選用的淺藤色,主臥室選用粉嫩搭佐成熟灰,無形中描繪屋主特有的個人風格。
選用灰鏡與收納置鞋櫃結合,增加空間上的視覺寬敞感。
考慮到風水穿堂煞的問題,所以牆上設計能透光的玻璃磚搭配若隱若現的長虹玻璃推拉門巧妙將落地窗的光線引進,並增強了整體的明亮感。
不同於公領域選用的淺藤色,主臥室選用粉嫩搭佐成熟灰,無形中描繪屋主特有的個人風格。