綠意蔓生
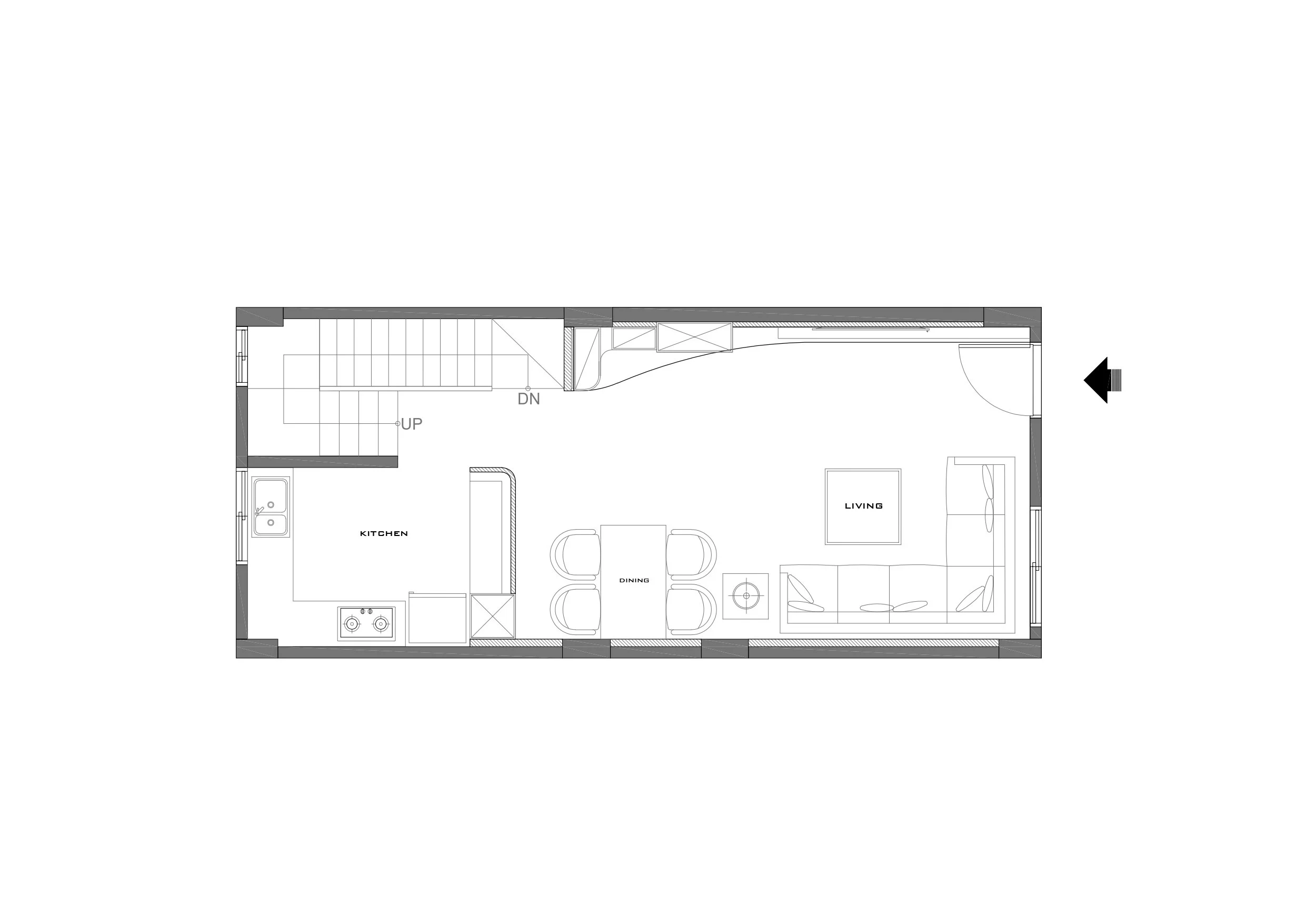
1F
大片的沙發背牆注入寧靜的莫蘭迪綠,創造光合作用般的綠植意象,富含淺灰石紋的電視牆以內嵌造型結合收納,並加入鐵件層架銜接L型木質櫃體。


透過不同質材的拼接讓原本純粹的實用性收納轉化為一氣呵成的美型端景
為了避免櫃體太過沈重底部透過間接光源以及柔和的弧線光帶柔化邊角的銳利度更締造空間的吸睛亮點。



將客、餐廳機能相互連結,引導清亮的光影能遊走於室內,餐廚區額外配置出餐吧台,以不做滿的設計界定場域,也提升料理、收納的機能。



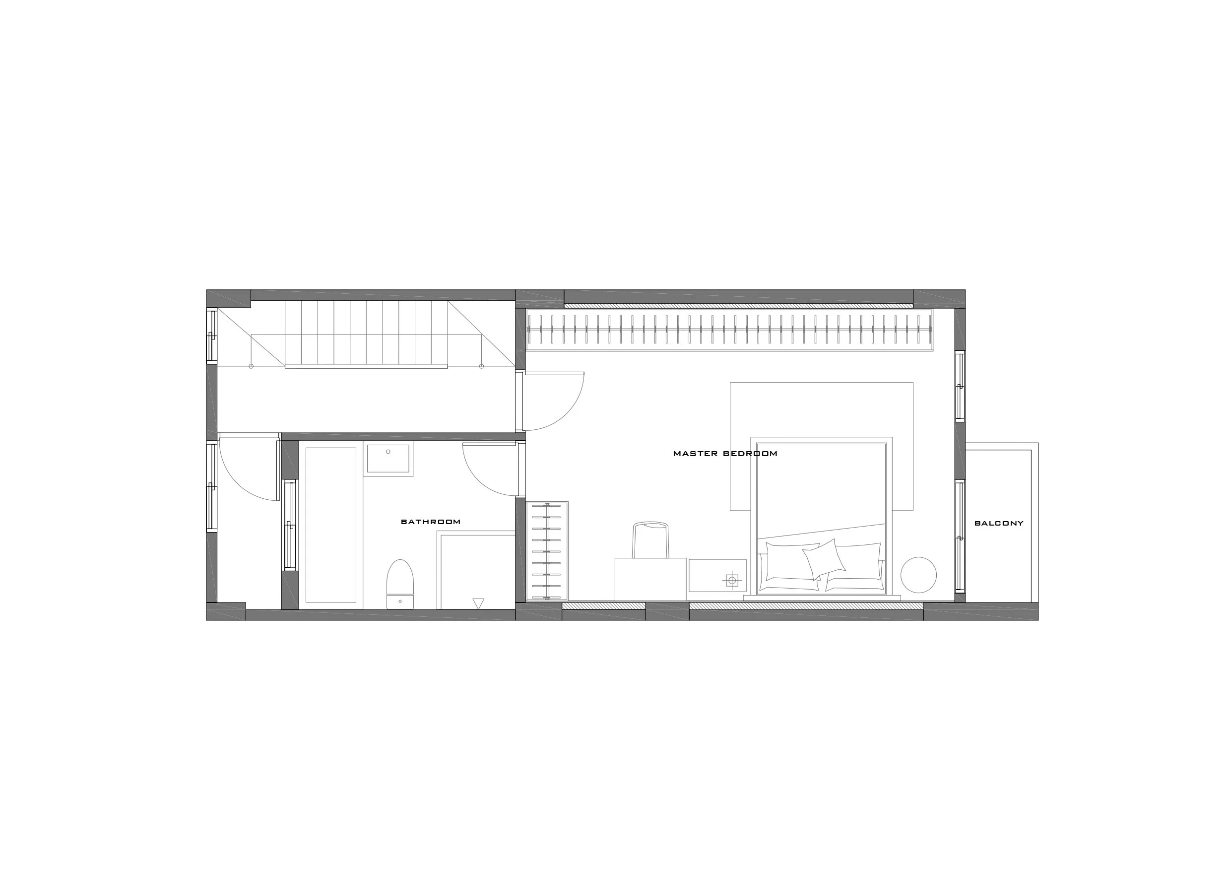
2F
拾階而上來到二樓主臥,以寧靜的大地色系鋪陳休憩氛圍,並將以俐落的隱藏式手法整合收納衣櫃,維持整齊劃一的視覺環境。


3F
次臥室以斜切、幾何造型的色塊堆疊,營造活潑、青春的休憩氛圍。
